144 井内地区 (内覧申込5・交渉中1)

No.144 井内地区の家(内覧申込5・交渉中1)

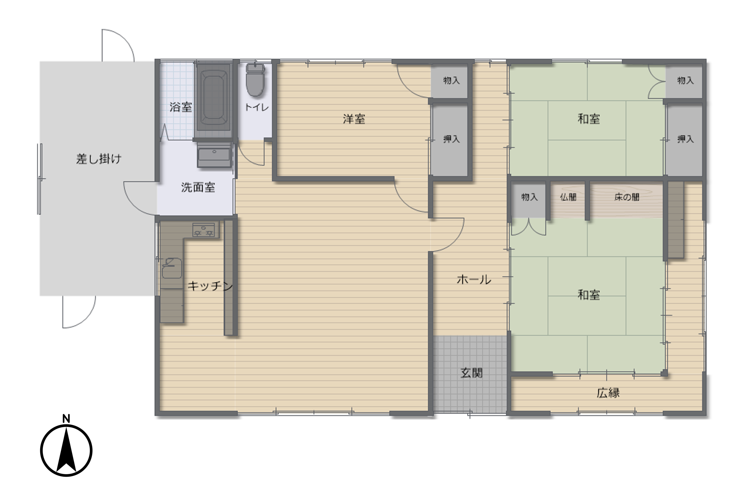
物件情報

面積 122.09㎡(約36坪)

構造 木造平屋建て

間取り 3DK

建築時期 平成6年頃

駐車場 あり(2台分)

物件の特徴 日当たり良好。平成23年の紀伊半島大水害時の浸水被害なし。台所に床下収納あり。敷地外の土地・山林付き。

特記事項 玄関、シロアリ跡あり。玄関ホールの床が緩い箇所あり。屋根にたわみあり(目視による)。隣接しない土地も付属。(別建物1軒あり。契約成立後に所有者により解体予定。現地要確認。)

電気 即使用可

台所 プロパンガス

トイレ 水洗(洋式)

風呂 ガス

水道 上水道(休止中)

浄化槽 合併処理浄化槽(個人管理)

希望価格 売買 180万円

地図(場所は近隣を示しています)

【お問い合わせ】
紀宝町役場 企画調整課(0735-33-0334)
紀宝町移住定住サポートデスク(080-6963-1792)

 

PAGE TOP